Reconstruction and rearrangement of the basement in a private single-family house
| Localization | Poznań, Poland |
| Year | 2020 - 2025 |
| Status | Completed |
| Client | Private |
| Program | Movement studio for parents and children with auxiliary spaces |
| Area | 80 m2 |
| Team | Jola Starzak, Dawid Strębicki, Katarzyna Krawczyk |
| Phography | Danil Daneliuk |
In the project of the reconstruction and rearrangement of the basement in a private single-family house, the key objective was to create a bright, welcoming, and functional space that would serve as a movement studio for parents and children. The interior was meant to become a free and safe environment while still preserving its character.
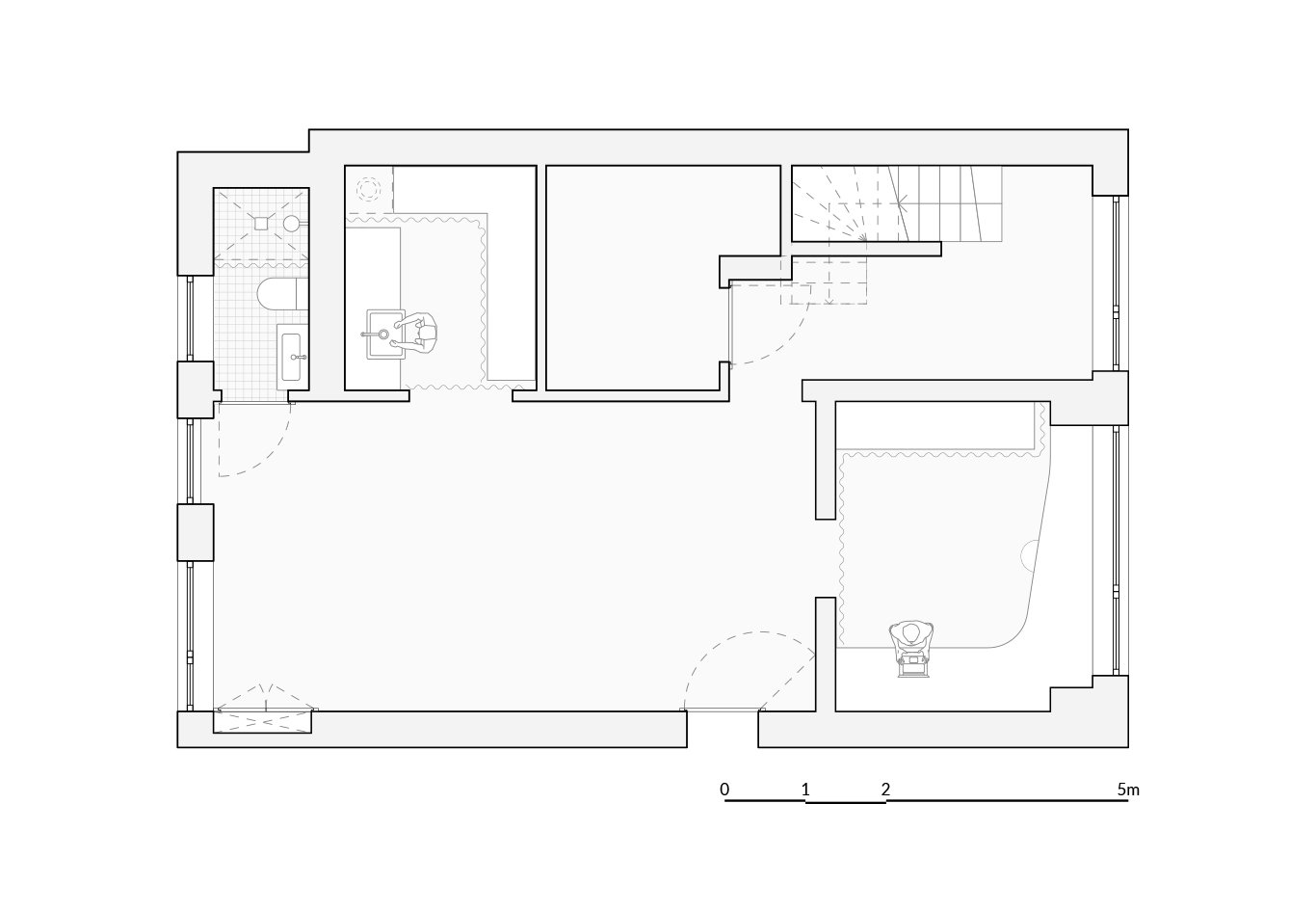
The heart of the space is the main room. A defining feature that lends it personality is the preserved brick walls covered with light paint. They act as a backdrop that does not dominate but subtly enhances the character of the interior. The raw brick combined with the soft fabric curtains separating the office and kitchen from the studio creates a striking contrast—a blend of structure and delicacy. This interplay gives the space a unique rhythm, perfect for movement, play, and relaxation.
The kitchen and small office are separated by a curtain that organizes the layout without taking away its lightness or sense of openness. The fabric naturally defines the zones while preserving flexibility—the interior can open or close depending on the needs of the classes and their users. The toilet and staircase are integrated into the space in a way that keeps circulation intuitive and the entire layout clear and cohesive.
An important part of the project was also the transformation within the private area of the home—an elegant, discreet glazing was designed to separate the bedroom from the staircase, bringing a sense of openness and allowing more light to enter the space.






